Trilocale in vendita

Chiavari, Via emilio ritrovato
€ 295.000
3 locali 3 locali
88 Mq 88 Mq
1 bagno 1 bagno

Trilocale in vendita

Chiavari, Via emilio ritrovato

Descrizione annuncio

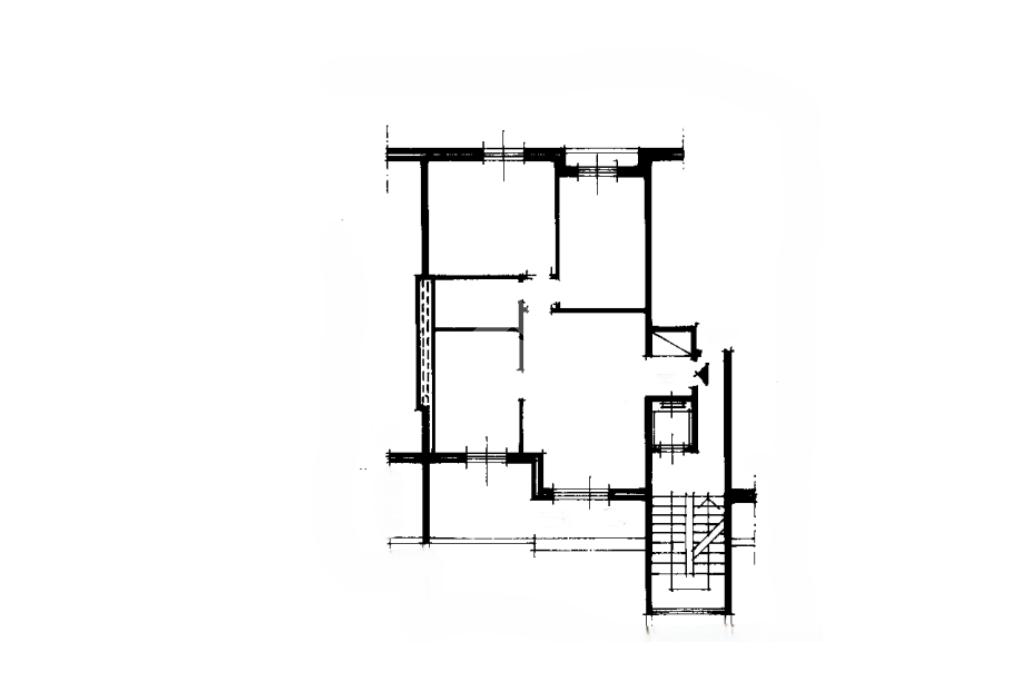
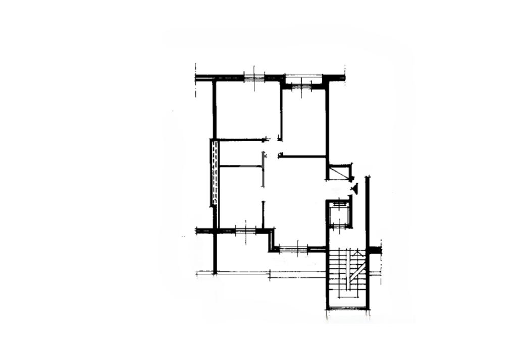
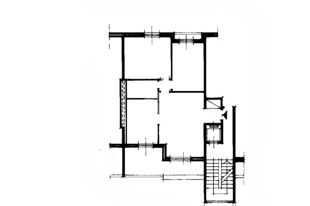
Chiavari, via Emilio Ritrovato, proponiamo in vendita in proprietà superficiaria un appartamento completamente ristutturato di 88 mq catastali, situato al terzo ed ultimo piano con ascensore, in un contesto tranquillo e ben servito nel quartiere di Sanpierdicanne.

L’immobile è composto da ingresso in soggiorno con cucina a vista, due camere da letto ed un bagno ad areazione forzata.

L' abitazione è dotata di un terrazzino vivibile a servizio della cuicina e del soggiorno e di un balcone con accesso da una delle camere da letto.

Il riscaldamento è termoautonomo e garantisce un’ottima efficienza e indipendenza nella gestione dei consumi.

Completano la proprietà un'ampia cantina al piano seminterrato ed una solana nel sottotetto.

Ad arricchiere la proprietà un comodo posto auto. Inoltre è assegnato all'immobile un posto moto coperto.

La posizione, comoda ai principali servizi e ben collegata al centro di Chiavari, rende questa soluzione ideale per chi cerca un appartamento di ampia metratura e termoautonomo, in un contesto tranquillo e residenziale con facilità di parcheggio e collegamenti comodi.

Per ulteriori informazioni, in particolar modo riguardo la proprietà superficiaria, chiamare in agenzia.

Mostra tutto

Nelle vicinanze

Trasporto pubblico Trasporto pubblico
stazione di Chiavari
stazione di Chiavari
1,7 Km
Trasporto pubblico
60 m
Ricariche auto elettriche Ricariche auto elettriche
Duferco Chiavari
1,9 Km
Euronics Dimo San Salvatore
2,3 Km
COOP CC I Leudi by Duferco
2,9 Km
Scuole Scuole
Scuola primaria Sampierdicanne
340 m
Istituto Maria Luigia
790 m
Istituto Tecnico Statale di Chiavari - Succursale
1,1 Km
Istituto Assarotti
1,1 Km
Istituto Tecnico Statale
1,1 Km
Farmacia Farmacia
Farmacia delle Grazie
530 m
Farmacia Centrale
1,3 Km
Farmacia San Giovanni
1,4 Km
Farmacia Podestà
1,5 Km
Farmacia Bellagamba
1,6 Km
Ospedali Ospedali
Polo Ospedaliero di Chiavari
1,2 Km
Ospedale di Lavagna
2,7 Km
Supermercati Supermercati
Supermercato In's
220 m
Supermercato Coop
700 m
Basko
1,0 Km
CRAI
1,3 Km
Carrefour Express
1,4 Km
Negozi Negozi
Negozi
460 m
Sanguineti
480 m
Abbigliamento
940 m
Abbigliamento Botto
1,3 Km
Panificio Piombo
1,3 Km
Bar Bar
Bar Sunrise
900 m
Bar
1,1 Km
Corallo Café
1,3 Km
La Mattonella
1,4 Km
Tossini
1,5 Km
Ristoranti Ristoranti
Filoverde ristorante e camere
1,1 Km
Nauroz
1,3 Km
Trattoria Parma
1,3 Km
Pizzeria Malu
1,3 Km
Luchin
1,5 Km
Mostra tutto

Caratteristiche

Rif.:
61129977
Piano:
3 di 3 con ascensore (ultimo Piano)
Posti auto:
1
Balconi:
1
Terrazzi:
1
Camere da letto:
2
Mostra tutto
Prezzo Prezzo
€ 295.000
Rata mutuo Rata mutuo
€ 1.375 / mese
Spese annue Spese annue
€ 800
Proponi il tuo prezzoProponi il tuo prezzo

Classe Energetica

E
E
E
E
E
E
E
E
E
EP globale non rinnovabile:
88.69 kW h/m² anno
EP globale rinnovabile:
1.18 kW h/m² anno
EP invernale del fabbricato:
EP estiva del fabbricato:
Anno di costruzione:
1985
Riscaldamento:
Autonomo
Tipo impianto:
A radiatori
Tipo alimentazione:
Metano

Ti interessa visionare l'immobile?

Fissa un appuntamento  Fissa un appuntamento

Richiedi informazioni

Clicca su Leggi per aprire l'informativa
* Questi campi sono obbligatori

Calcola il tuo mutuo

Semplice e senza impegno
Anticipo

( % )
Mutuo

( % )

pochi semplici passi

inserisci i tuoi dati
Questionario completato
Grazie per aver richiesto un appuntamento senza impegno con un nostro Consulente del Credito e Assicurativo.

Hai inserito correttamente tutti i dati necessari e a breve riceverai una e-mail con un link da convalidare per inviare i tuoi dati.
Affiliato
Studio Chiavari 2 Snc
Corso Montevideo, 25 16043 Chiavari (GE)

Il nostro staff


  • Franco Giacheri
    Affiliato

  • Andrea Monteverde
    Affiliato

  • Cristiano Pelosin
    Collaboratore
Corso Montevideo, 25 16043 Chiavari (GE)
Zona: Chiavari Ponente
Mostra su mappa
Orari: da Lunedì a Sabato dalle ore 09.00 alle 12.30 e dalle 15.00 alle 19.30; Domenica su appuntamento.
Affiliato
Studio Chiavari 2 Snc
Corso Montevideo, 25 16043 Chiavari (GE)

2025 Tecnocasa Franchising S.p.A. - P. IVA 08365160152 - Via Monte Bianco 60/A 20089 Rozzano (MI). Ogni agenzia ha un proprio titolare ed è autonoma. Privacy policy | Policy utilizzo | Cookie policy